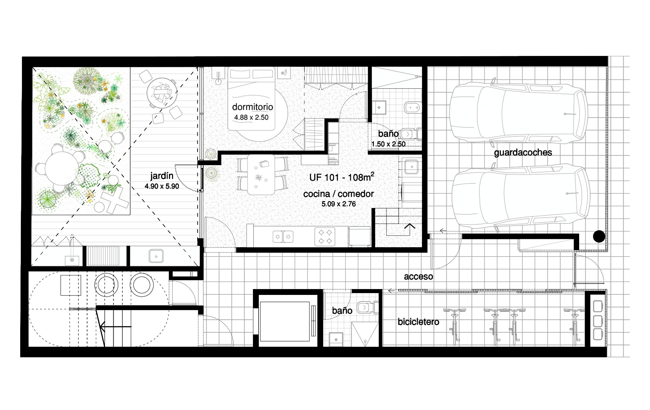
El proyecto para el edificio de Estomba 1046 reflexiona sobre cómo lo compacto puede convivir con el habitar de la pos pandemia de Covid19. El lote se sitúa en un barrio tradicionalmente de baja densidad, en el cual predominan las viviendas unifamiliares, algunos edificios de escala baja, y a continuación, sin rejas, la plaza que ocupa una manzana. Las medidas del terreno son acotadas, con 17.32m de profundidad y ancho de 8.61m.
La lógica proyectual adoptada combina la posibilidad de densificación a partir de la modificación del Código Urbano del 2021, y las cualidades barriales, para proponer una volumetría que pisa la uniforme la franja edificable de la manzana, en la cual se alojan los pisos de vivienda. En la parte posterior del lote se calza el núcleo de circulación coincidente con el patio vertical, estableciendo un diálogo lleno-vacío. Esta configuración permite despejar la planta y dejarla franca al uso residencial. Los espacios de estar, cocinar y comer responden a lo público de la calle, los dormitorios buscan intimidad y silencio ventilando al patio posterior.
En el frente, una grilla de hormigón modula la fachada, filtra las visuales y contiene los espacios semi cubiertos, cuyo desarrollo es al interior de la línea municipal. De medianera a medianera se desarrollan canteros lineales que actúan de buffer verde, por un lado, para mantener lo privado de cara a lo público, y por otro lado para responder a la necesidad de expansión semicubierta de la pos pandemia. En los últimos pisos, los retiros obligatorios organizan balcones y terrazas diferenciadas. Una de ellas para uso común con quincho, deck y terraza verde, pasto, plantas y un árbol para sombra. La otra privada perteneciente a la unidad del remate.
Los servicios comunes y circulaciones fueron proyectados priorizando la economía de recursos y el fácil mantenimiento de lo construído. Es decir, en planta baja se ubican dos cocheras privadas y los servicios mínimos exigidos por la reglamentación. En el primer piso se accede a los espacios de estar, cocina y lavadero de los departamentos tipo casa que ventilan al frente; los dormitorios con jardín privados se ubican en la planta baja. El resto de las tipologías tienen la misma lógica organizativa, los espacios de estar al frente, en relación a la calle, el límite público; los dormitorios al contrafrente, con más privacidad y menos ruido.
Asociados:
Estudio LABA (Alejandro Laurido, Nicolás López)Colaboradores:
Agustina Bozzano, Camila Sanchez Goitia, María Sol Bochoeyer.
estomba 1046
villa ortúzar, ciudad de buenos aires
proyecto y dirección de obra
- 2022-2025

















