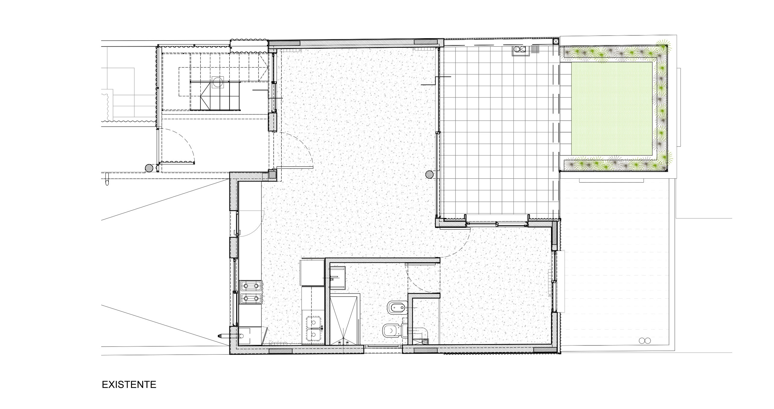
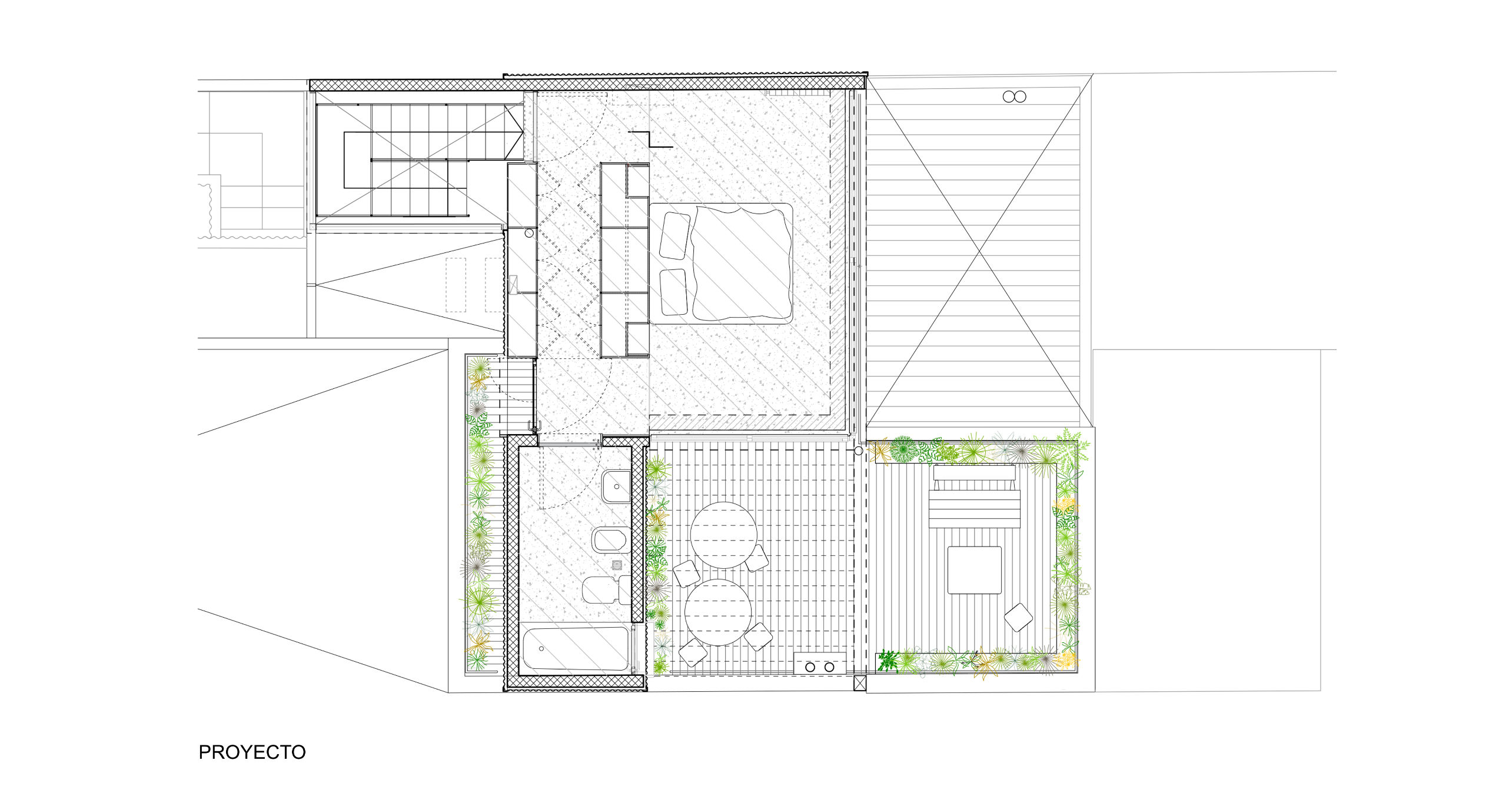
Se trata de un proyecto en el último piso de un edificio de Estudio Planta. La intervención busca agregar superficie cubierta a la existente con un dormitorio en suite y vestidor en la terraza verde existente. El planteo constructivo se ajusta a una lógica liviana por una serie de motivos. Debe ser de rápida ejecución y de logística simple, a la hora de subir los materiales. No tiene que cargar la estructura existente de hormigón excesivamente, al tratarse del último piso y por tanto tener las menores secciones en todos los elementos estructurales.
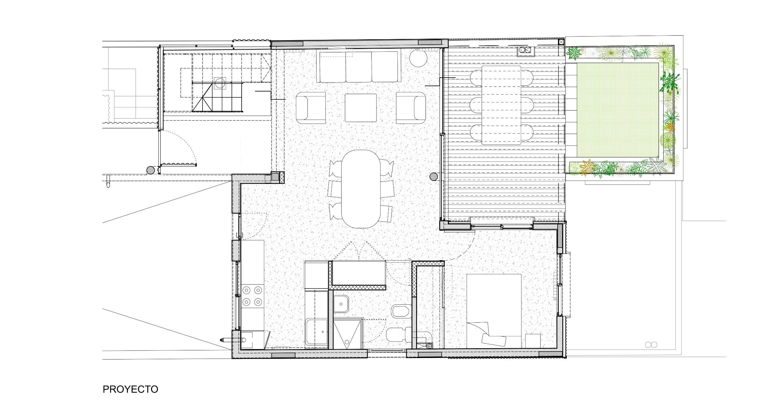
Se incorpora la escalera del dúplex existente, ahora cerrada, por donde se accede al piso del dormitorio principal, dispuesto de tal manera que se introducen las visuales sobre el verde de Comodoro Rivadavia. Aprovecha la dirección en diagonal del bulevar para abrirse a la Avenida Libertador, e introducir su ancho y la amplitud de visuales adentro del departamento.
La arquitectura interior está regulada a partir muebles que ordenan la planta, su funcionamiento y su circulación. A su vez cubren una necesidad del programa, agregar espacio de guardado.
Asociados:
Florencia Oszurkiewicz y Pablo Carracedo.Colaboradores:
Alejandro Laurido y Nicolás López.
comodoro rivadavia 1752
nuñez, ciudad de buenos aires.
proyecto y dirección de obra.
en cotización construcción.
- 2020 – 2021















